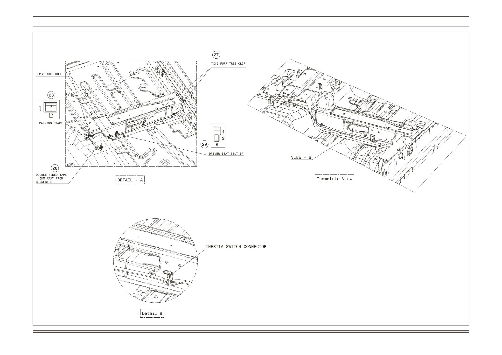
ZEST AND BOLT - page 1456-1457

INFO FITMENT DRAWING FOR W/H FLOOR RH ZEST
Electrical
BOLT / ZEST
131
1...,1436-1437,1438-1439,1440-1441,1442-1443,1444-1445,1446-1447,1448-1449,1450-1451,1452-1453,1454-1455 1458-1459,1460-1461,1462-1463,1464-1465,1466-1467,1468-1469,1470-1471,1472-1473,1474-1475,1476-1477,...
Powered by FlippingBook