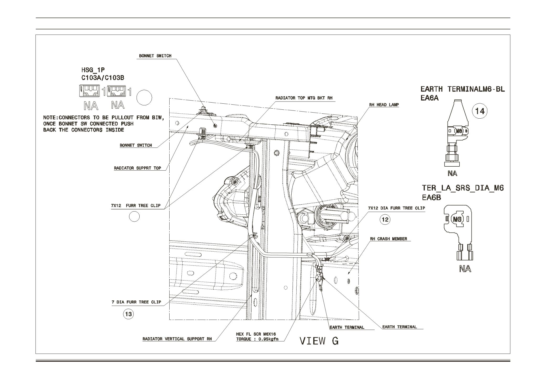
ZEST AND BOLT - page 1756-1757

60
59
281
Electrical
BOLT / ZEST
INFO FITMENT DRAWING FOR FRONT WH REVOTRON
1...,1736-1737,1738-1739,1740-1741,1742-1743,1744-1745,1746-1747,1748-1749,1750-1751,1752-1753,1754-1755 1758-1759,1760-1761,1762-1763,1764-1765,1766-1767,1768-1769,1770-1771,1772-1773,1774-1775,1776-1777,...
Powered by FlippingBook