ZEST AND BOLT - page 129

Revotron 1.2T
82
E. COOLING SYSTEM :
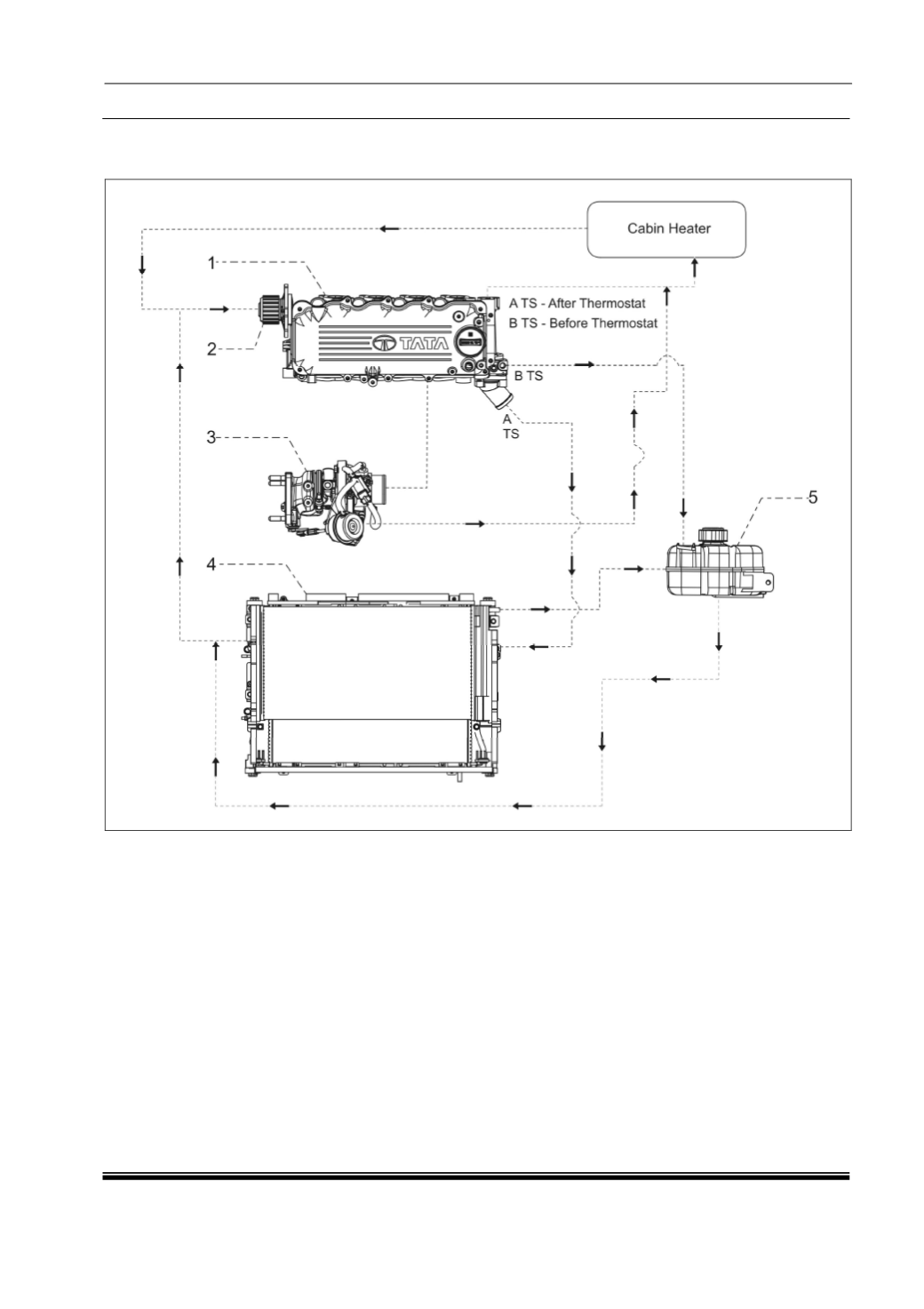
Cooling System Schematic Layout :
1 Engine Body
4 Radiator & Fan Shroud Assy
2 Water Pump
5 Auxiliary Tank
3 Turbocharger
Description :
The above fig. gives the coolant flow
circuit with the components. The coolant flow
is controlled by the thermostat. In addition to
the cylinder head and block, the coolant is
also circulated through turbocharger.
Auxiliary tank is provided to compensate
for the drop in coolant level. In addition there
is a de-gassing line connected between
thermostat housing and radiator top tank.
These help in maintaining the system
pressure created by expansion and
contraction of the coolant.
The coolant system consists of the
following components :
1. Radiator & Fan Shroud Assy.
2. Auxiliary Tank.
3. Thermostat.
4. Water Pump.
1...,119,120,121,122,123,124,125,126,127,128 130,131,132,133,134,135,136,137,138,139,...
Powered by FlippingBook