ZEST AND BOLT - page 1602-1603

Electrical
204
BOLT / ZEST
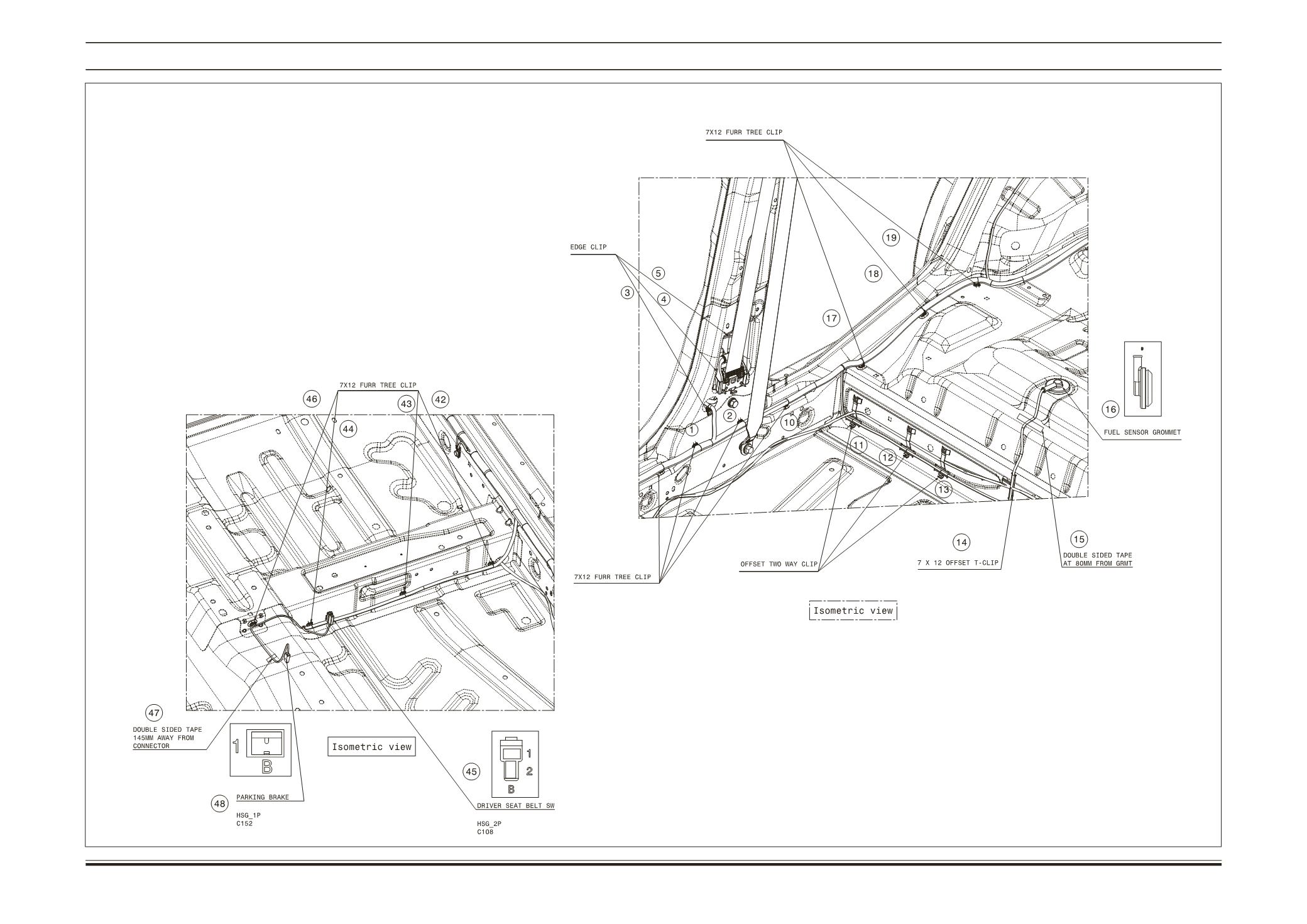
INFO FITMENT DRAWING FOR W/H FLOOR RH BOLT
1...,1582-1583,1584-1585,1586-1587,1588-1589,1590-1591,1592-1593,1594-1595,1596-1597,1598-1599,1600-1601 1604-1605,1606-1607,1608-1609,1610-1611,1612-1613,1614-1615,1616-1617,1618-1619,1620-1621,1622-1623,...
Powered by FlippingBook