ZEST AND BOLT - page 1844-1845

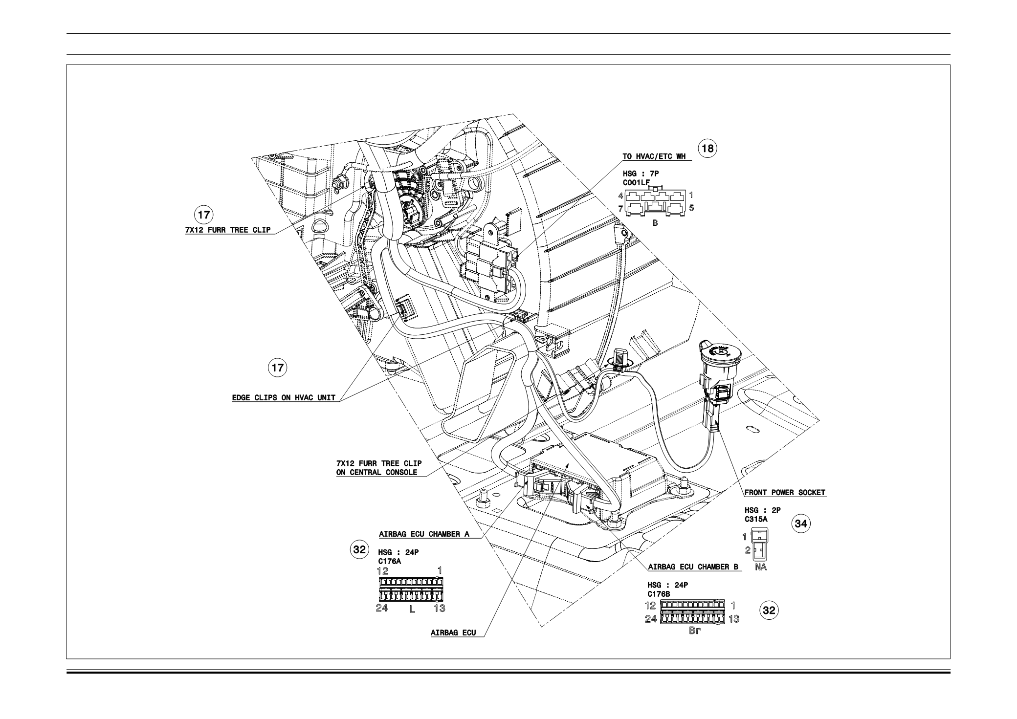
INFO FITMENT DRAWING FOR COCKPIT WH
325
Electrical
BOLT / ZEST
1...,1824-1825,1826-1827,1828-1829,1830-1831,1832-1833,1834-1835,1836-1837,1838-1839,1840-1841,1842-1843 1846-1847,1848-1849,1850-1851,1852-1853,1854-1855,1856-1857,1858-1859,1860-1861,1862-1863,1864-1865,...
Powered by FlippingBook