ZEST AND BOLT - page 1856-1857

Electrical
BOLT / ZEST
331
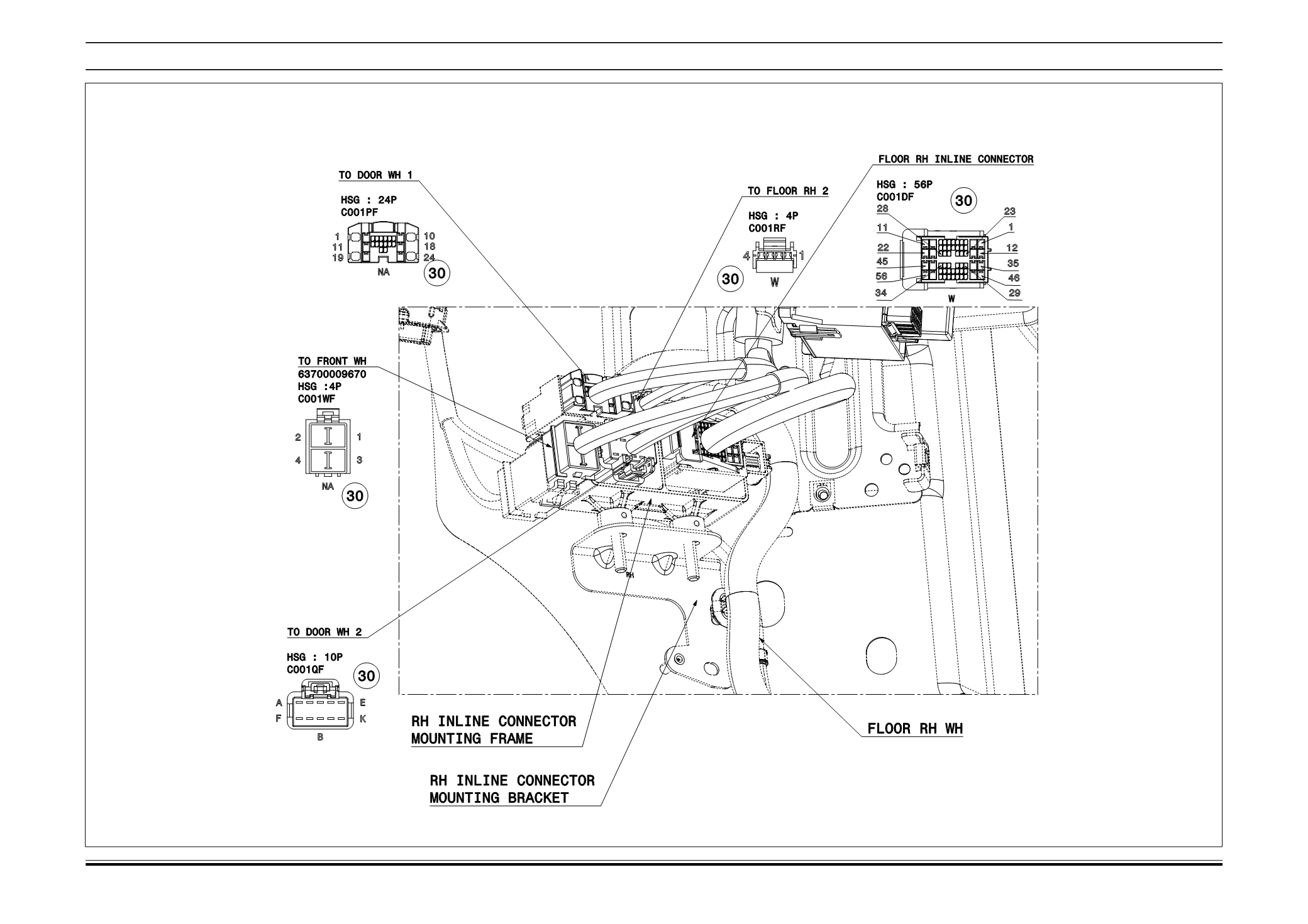
INFO FITMENT DRAWING FOR COCKPIT WH
1...,1836-1837,1838-1839,1840-1841,1842-1843,1844-1845,1846-1847,1848-1849,1850-1851,1852-1853,1854-1855 1858-1859,1860-1861,1862-1863,1864-1865,1866-1867,1868-1869,1870-1871,1872-1873,1874-1875,1876-1877,...
Powered by FlippingBook