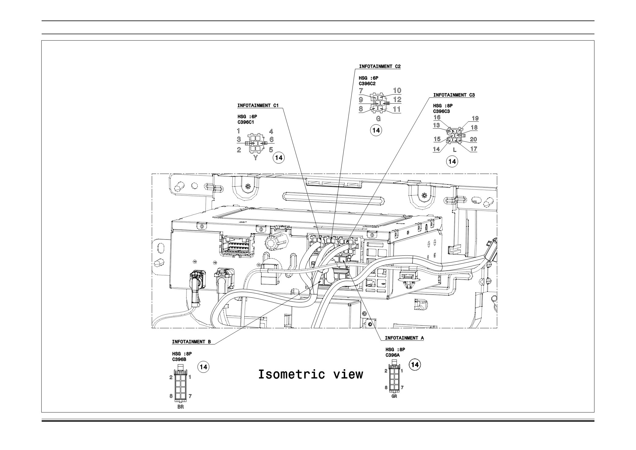
ZEST AND BOLT - page 1870-1871

INFO FITMENT DRAWING FOR COCKPIT WH
Electrical
BOLT / ZEST
338
1...,1850-1851,1852-1853,1854-1855,1856-1857,1858-1859,1860-1861,1862-1863,1864-1865,1866-1867,1868-1869 1872-1873,1874-1875,1876-1877,1878-1879,1880-1881,1882-1883,1884-1885,1886-1887,1888-1889,1890-1891,...
Powered by FlippingBook