ZEST AND BOLT - page 1900-1901

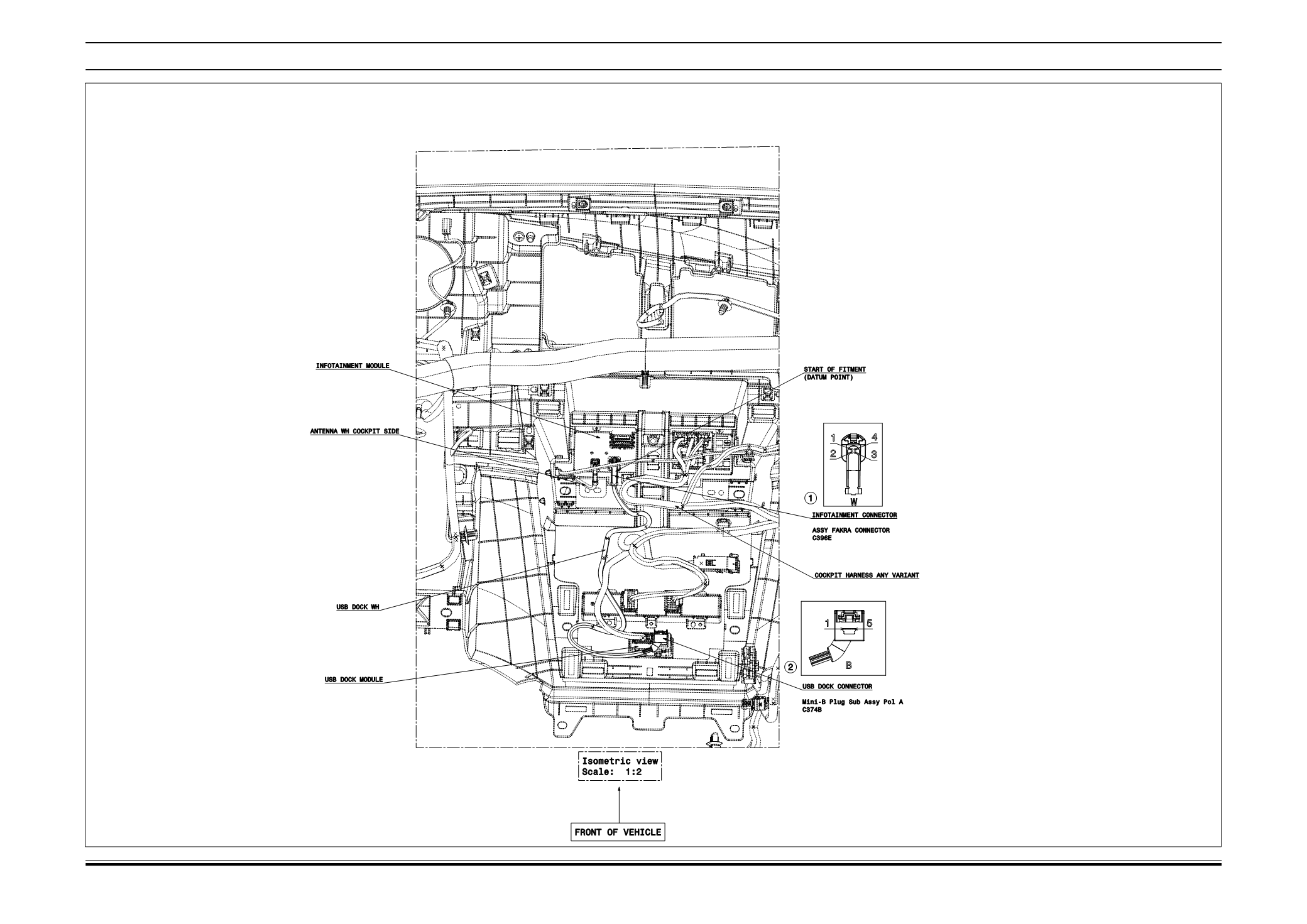
INFO FITMENT DAWINRG FOR USB CABLE
Electrical
BOLT / ZEST
353
1...,1880-1881,1882-1883,1884-1885,1886-1887,1888-1889,1890-1891,1892-1893,1894-1895,1896-1897,1898-1899 1902-1903,1904-1905,1906-1907,1908-1909,1910-1911,1912-1913,1914-1915,1916-1917,1918-1919,1920-1921,...
Powered by FlippingBook