ZEST AND BOLT - page 1918-1919

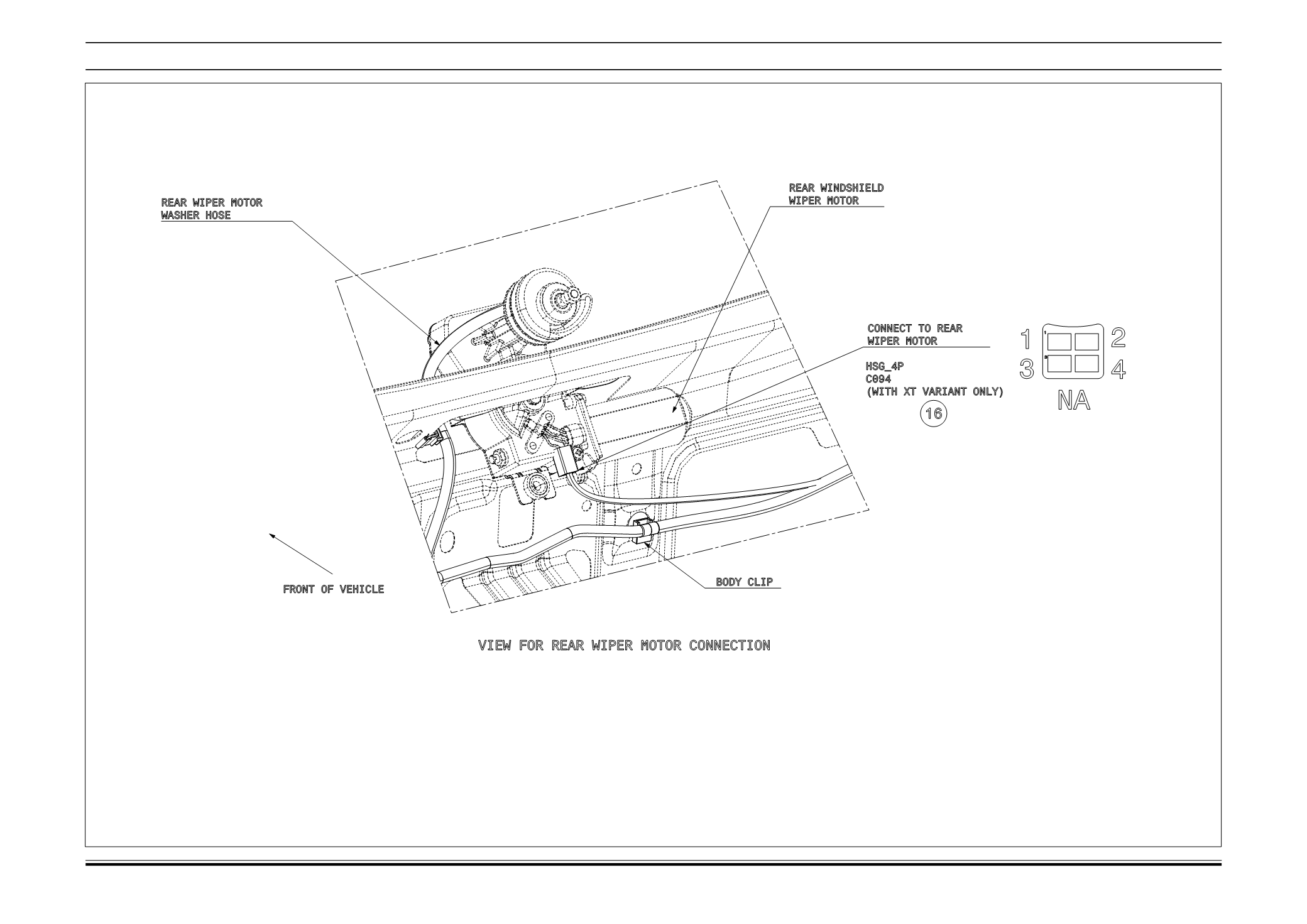
VIEW FOR REAR WIPER MOTOR CONNECTION
REAR WINDSHIELD
WIPER MOTOR
CONNECT TO REAR
WIPER MOTOR
HSG_4P
C094
(WITH XT VARIANT ONLY)
BODY CLIP
REAR WIPER MOTOR
WASHER HOSE
FRONT OF VEHICLE
16
INFO FITMENT DRAWING FOR TAIL GATE
Electrical
BOLT / ZEST
362
1...,1898-1899,1900-1901,1902-1903,1904-1905,1906-1907,1908-1909,1910-1911,1912-1913,1914-1915,1916-1917 1920-1921,1922-1923,1924-1925,1926-1927,1928-1929,1930-1931,1932-1933,1934-1935,1936-1937,1938-1939,...
Powered by FlippingBook