ZEST AND BOLT - page 1926-1927

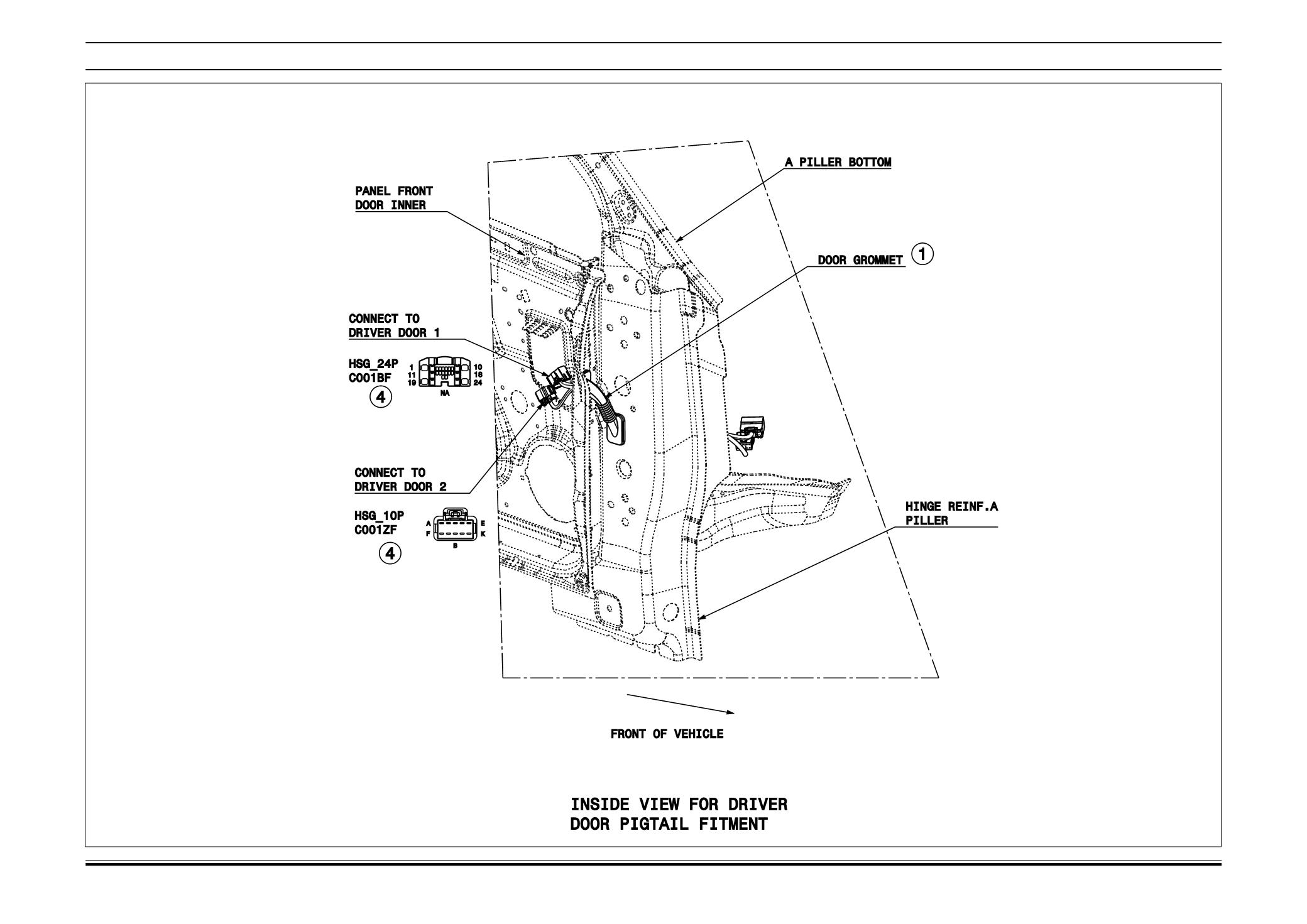
INFO FITMENT DRAWING FOR DRIVER AND CO-DRIVER DOOR PIGTAIL
Electrical
BOLT / ZEST
366
1...,1906-1907,1908-1909,1910-1911,1912-1913,1914-1915,1916-1917,1918-1919,1920-1921,1922-1923,1924-1925 1928-1929,1930-1931,1932-1933,1934-1935,1936-1937,1938-1939,1940-1941,1942-1943,1944-1945,1946-1947,...
Powered by FlippingBook